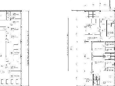
2025 ZIELONA GÓRA „LUCO”
    
2025 r. – Konkurs na opracowanie koncepcji budowy Lubuskiego Uniwersyteckiego Centrum Onkologii w Szpitalu Uniwersyteckim im. Karola Marcinkowskiego w Zielonej Górze sp. z o.o.
 
 
    
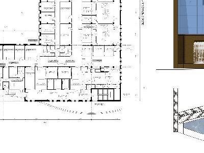
    2018 POZNAŃ WCO
    
2018 r. – Konkurs na opracowanie koncepcji rozbudowy w kierunku ul. Strzeleckiej Wielkopolskiego Centrum Onkologii im. Marii Skłodowskiej-Curie w Poznaniu, ul. Garbary o budynek ambulatoryjny z garażem podziemnym
 
 
    
    2014 WROCŁAW MEDICUS
    
2014 r. – Konkurs na opracowanie koncepcji architektonicznej budowy Dolnośląskiego Centrum Laryngologii i Chirurgii Plastycznej MEDICUS wraz z Biurami dla Spółek Grupy MEDICUS we Wrocławiu, przy Placu Strzeleckim
 
 
    
    2013 WARSZAWA SZPITAL WOLSKI
    
2013 r. – Konkurs na opracowanie koncepcji architektonicznej Pawilonu Oddziału Internistycznego z Pracownią Diagnostyki Endoskopowej w Szpitalu Wolskim im. Dr Anny Gostyńskiej w Warszawie, ul. Kasprzaka – III NAGRODA
 
 
    
    2010 WROCŁAW SZPITAL WOJSKOWY
    
2010 r. – Konkurs na opracowanie koncepcji architektoniczno-urbanistycznej Zintegrowanego Bloku Operacyjnego 4 Wojskowego Szpitala Klinicznego z Polikliniką we Wrocławiu, ul. Rudolfa Weigla
 
 
    
    2009 GDYNIA GCO
    
2009 r. – Konkurs na opracowanie koncepcji architektoniczno-przestrzennej rozbudowy części zabiegowej Gdyńskiego Centrum Onkologii przy Szpitalu Morskim w Gdyni, ul. Powstania Styczniowego – I NAGRODA REALIZACYJNA
 
 
    
    2008 POLANICA KLINIKA
    
2008 r. – Koncepcja budynku prywatnej Kliniki Chirurgii Plastycznej w Polanicy Zdroju
 
 
    
    2007 ŁÓDŹ HOSPICJUM SZPITAL MIEJSKI
    
2007 r. – Konkurs na opracowanie koncepcji urbanistyczno-architektonicznej rozbudowy IV Szpitala Miejskiego im. Dr H. Jordana w Łodzi, ul. Przyrodnicza – WYRÓŻNIENIE
 
 
    
    2005 WARSZAWA SZPITAL PRASKI
    
2005 r. – Konkurs na opracowanie koncepcji architektoniczno-przestrzennej rozbudowy i przebudowy Szpitala Praskiego p.w. Przemienienia Pańskiego w Warszawie, Aleja Solidarności – II NAGRODA REALIZACYJNA
 
 
    
    2005 POZNAŃ WCO
    
2005 r. – Konkurs na opracowanie koncepcji architektonicznej przebudowy i rozbudowy Wielkopolskiego Centrum Onkologii im. Marii Skłodowskiej-Curie w Poznaniu, ul. Garbary – dla potrzeb Zakładu Radioterapii i Zakładu Diagnostyki Obrazowe
 
 
    
    2004 SZCZECIN RSO
    
2004 r. – Konkurs na opracowanie koncepcji architektoniczno-przestrzennej Centrum Diagnostyki i Terapii Nowotworów Piersi dla Regionalnego Szpitala Onkologicznego w Szczecinie, ul. Strzałkowska – II NAGRODA
 
 
    
    2002 WROCŁAW UL. OBORNICKA
    
2002 r. – Konkurs deweloperski na opracowanie koncepcji zespołu zabudowy wielorodzinnej przy ul. Obornickiej we Wrocławiu
 
 
 
    
    2002 STALOWA WOLA SZPITAL SPECJALISTYCZNY
    
2002 r. – Konkurs na opracowanie koncepcji rozbudowy Powiatowego Szpitala Specjalistycznego w Stalowej Woli, ul. Stanisław Staszica – I NAGRODA REALIZACYJNA